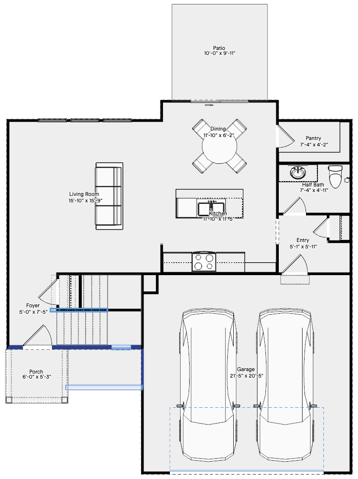
The Aiden 2-Story

Woodlawn Estates » Fox Hollow » The Woodlands at Chapman Farms » Woodhaven Estates »
  • 4-5 Bedrooms
  • 2.5-3.5 Bathrooms
  • 2-3 Car Garage
  • Starts at 1,978 SQ. FT.
* Elevations and pricing may vary based on community

Explore this Floor Plan

The Aiden

Main Level
Upper Level
Aiden Upper Level

Be the First

Be the first to know about our communities and homes, including early access to pricing, new home plans and VIP events.